Halnon Humphreys

Highfield Cottage, Ballinamona, Blackwater, Y21 XN90

4 Bed Detached House with annex For Sale

Guide price €410,000

Print additional images & map (disable to save ink)

Photo 1 of Highfield Cottage, Ballinamona, Blackwater

Telephone:

(053) 941 1720

View Online:

www.wexfordproperty.ie/1047558

Key Information

Address Highfield Cottage, Ballinamona, Blackwater, Y21 XN90
Price Guide price €410,000
Style Detached House with annex
Bedrooms 4
Receptions 4
Bathrooms 3
Heating Oil
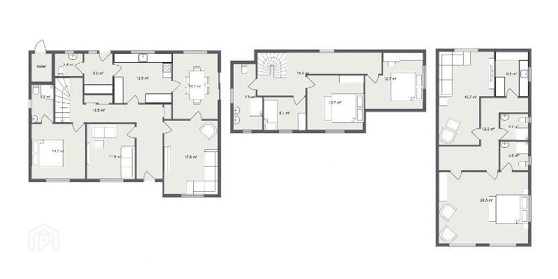
Size 240 m²
BER Rating
Status For sale
PSRA License No. 004506
   

Additional Information

Halnon Humphreys are delighted to bring to the market this large, energy efficient 4 bedroom plus study detached home with an attached self-contained annex.

This excellent home is situated in a popular location and standing on a large, mature landscaped plot measuring approx. 0.4 Hectares/1 acre.

The total accommodation measures approx. 240 sq. metres/2583 sq. ft with the dwelling houses extending to approx. 170 sq. metres/1830 sq. ft and the annex measuring approx. 70 sq. metres/753 sq. ft.

Features include generous living and bedroom accommodation, Solar Panels, nature private gardens and a range of outbuildings.

Accommodation on the ground floor of the main dwelling comprises an entrance hallway; sitting room; kitchen; dining room; utility room with a guest WC; 2 bedrooms with one bedroom including an ensuite shower room.

The first-floor accommodation comprises a landing area; bathroom; 2 bedrooms and a study room.

Accommodation of the annex building comprises and entrance hallway; sitting room; bathroom; shower room; kitchen area and an open plan living area.

Location:

'Highfield Cottage' is located just off the main R741 between Gorey & Wexford. The property is a mere 5 minutes drive from picturesque Blackwater village and it' s amenities such as shops, school, church, playground and beaches.

Gorey Town is approx. a 20 minute drive; Wexford Town is approx. a 15 minute drive; Enniscorthy is approx. a 15 minute drive; Curracloe is approx. a 10 minute drive and Junction 25 of the M11 Motorway is approx. a 15 minute drive.

Outside:

The property has a large L shaped terrace which is south facing and is the ideal location to take in the beautiful countryside views. It is nestled on a large plot that boasts a mature boundary, gated entrance and a tree lined avenue as well as a range of outdoor sheds and a polytunnel in the rear garden.

Services:

Oil Fired Central Heating in the main dwelling, Solar Panels, Private Well & Septic Tank, High Speed Fibre Broadband available in the area. Gas Heating In The Annex.

Directions:

The Eircode for the property is Y21 XN90

BER Details:

BER B3

BER No: 104820717

Energy Performance Indicator: 139.69 kWh/m2/yr

BER details

BER Rating:

BER No.: 104820717

Energy Performance Indicator: 139.69 kWh/m²/yr

  • Halnon Humphreys

    Halnon Humphreys

    (053) 941 1720

Photo Gallery

Photo 1 of Highfield Cottage, Ballinamona, Blackwater Photo 2 of Highfield Cottage, Ballinamona, Blackwater Photo 3 of Highfield Cottage, Ballinamona, Blackwater Photo 4 of Highfield Cottage, Ballinamona, Blackwater Photo 5 of Highfield Cottage, Ballinamona, Blackwater Photo 6 of Highfield Cottage, Ballinamona, Blackwater Photo 7 of Highfield Cottage, Ballinamona, Blackwater Photo 8 of Highfield Cottage, Ballinamona, Blackwater Photo 9 of Highfield Cottage, Ballinamona, Blackwater Photo 10 of Highfield Cottage, Ballinamona, Blackwater Photo 11 of Highfield Cottage, Ballinamona, Blackwater Photo 12 of Highfield Cottage, Ballinamona, Blackwater Photo 13 of Highfield Cottage, Ballinamona, Blackwater Photo 14 of Highfield Cottage, Ballinamona, Blackwater Photo 15 of Highfield Cottage, Ballinamona, Blackwater Photo 16 of Highfield Cottage, Ballinamona, Blackwater Photo 17 of Highfield Cottage, Ballinamona, Blackwater Photo 18 of Highfield Cottage, Ballinamona, Blackwater Photo 19 of Highfield Cottage, Ballinamona, Blackwater Photo 20 of Highfield Cottage, Ballinamona, Blackwater Photo 21 of Highfield Cottage, Ballinamona, Blackwater Photo 22 of Highfield Cottage, Ballinamona, Blackwater Photo 23 of Highfield Cottage, Ballinamona, Blackwater Photo 24 of Highfield Cottage, Ballinamona, Blackwater Photo 25 of Highfield Cottage, Ballinamona, Blackwater Photo 26 of Highfield Cottage, Ballinamona, Blackwater Photo 27 of Highfield Cottage, Ballinamona, Blackwater Photo 28 of Highfield Cottage, Ballinamona, Blackwater Photo 29 of Highfield Cottage, Ballinamona, Blackwater Photo 30 of Highfield Cottage, Ballinamona, Blackwater Photo 31 of Highfield Cottage, Ballinamona, Blackwater Photo 32 of Highfield Cottage, Ballinamona, Blackwater Floorplan 1 of Highfield Cottage, Ballinamona, Blackwater Photo 33 of Highfield Cottage, Ballinamona, Blackwater Photo 34 of Highfield Cottage, Ballinamona, Blackwater Photo 35 of Highfield Cottage, Ballinamona, Blackwater Photo 36 of Highfield Cottage, Ballinamona, Blackwater Photo 37 of Highfield Cottage, Ballinamona, Blackwater Photo 38 of Highfield Cottage, Ballinamona, Blackwater

Location

Visit www.wexfordproperty.ie for further details.